El nuevo edificio de la Suprema Corte de Justicia y la Procuraduría General de la República, resultado de la propuesta ganadora del concurso nacional de diseño celebrado en 1997, defiende la posibilidad de concretar una arquitectura de este tiempo en un espacio de importancia histórica en la cultura dominicana: el Centro de los Héroes de Constanza, Maimón y Estero Hondo.

Los requerimientos programáticos establecieron con claridad la necesidad de respetar la independencia institucional de las entidades que compartirían el complejo edilicio: la Suprema Corte de Justicia y la Procuraduría General de la República.
La coexistencia armoniosa de ambos dominios institucionales no impidió la articulación de una serie de servicios y áreas de uso común. Tal es el caso de los bloques de circulación, las áreas de información y espera, las oficinas de recepción de correspondencia, la estación de control y seguridad, las estafetas para venta de sellos y formularios, el salón de conferencias, la cafetería y los servicios sanitarios y teléfonos.
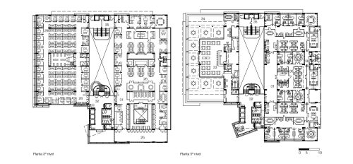
Estas instalaciones se organizan alrededor del atrio central que alcanza una altura de siete niveles. La naturaleza cívica de todas estas actividades le confiere un carácter de Plaza a este primer nivel, cuyo acceso principal se realiza desde el boulevard Jiménez Moya. La extensión de la edificación determinó, además, otras alternativas de ingreso.

La definición del atrio central como el espacio de articulación del conjunto en cuanto a imagen, función y servicios ha permitido que los bloques oeste y este se configuren estructuralmente como plantas libres de simple resolución técnica, tanto en la estandarización de piezas prefabricadas para las losas como en la dotación de conductos para los diversos sistemas y redes, siguiendo circuitos de clara y eficiente distribución.
La edificación se inscribe en un cuadrado dividido en nueve cuadrados grandes, interconectados jerárquicamente por otros medianos. Este patrón facilitó la organización de los espacios principales y secundarios que requería el programa. El cuadrante de la esquina suroeste se libera para formar una plaza arbolada que interactúa con el monumento principal del Centro de los Héroes.
Los bloques norte y sur cuentan con ascensores y escaleras. En el norte se encuentran espacios especializados para el uso del sistema de correo neumático y para manejadoras de los aires acondicionados. Uno de los dos ascensores del bloque norte fue diseñado para funcionar como montacargas, convenientemente conectado a los accesos de servicio y a los varios depósitos localizados en el sótano.

El bloque sur resuelve las necesidades de limpieza de cada piso con un conducto vertical dirigido al recinto de compactación y tratamiento de basuras del sótano, los requerimientos sanitarios públicos y de empleados de menor jerarquía, y cuartos para instalaciones eléctricas, de datos, de CCTV y de teléfono. Ambos bloques funcionan como piezas escultóricas y constituyen elementos de alta presencia.
Los estacionamientos públicos, actualmente en proceso de construcción, se han dispuesto en el solar triangular adyacente a la propiedad, al norte de la avenida George Washington, mientras que los institucionales están localizados en el sótano del complejo.
La conformación del complejo permite diferenciar otros dos bloques que se alinean alrededor del atrio paralelamente a la Jiménez Moya. El primero de ellos da frente al oeste y utiliza las referencias arquitectónicas y urbanas —proporción, orientación y ubicación dentro del lote— de la estructura original construida en 1955 y demolida en 1996 después de un devastador incendio, lo que lo hace coherente a la escala del conjunto monumental de la Feria.
Este volumen de cuatro niveles, estructural y funcionalmente independiente, acomoda todas las necesidades de la Procuraduría General de la República. En el cuarto piso se dispusieron los despachos de más alta jerarquía, dentro de los que se destaca la oficina del Procurador General, en la esquina norte del bloque, que a través de una gran vidriera se vincula con la rotonda de la fuente, uno de los hitos más relevantes del conjunto institucional urbano.

El quinto nivel acomoda de forma elegante y privada un restaurante ejecutivo que, además de su espacio formal, incorpora una terraza jardín cubierta de pérgolas que contribuyen a aligerar la volumetría en este lado del edificio que da al boulevard central. Se retoma la idea del roof garden aplicada tan exitosamente por Guillermo González, maestro de la arquitectura moderna dominicana, en varias edificaciones del período moderno.
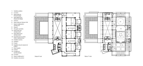
El bloque este se destina desde el segundo piso hasta el séptimo a la sede de la Suprema Corte de Justicia. La distribución del programa es sencilla: el piso más alto contiene los espacios más nobles: la Sala Augusta, que en el interior vuela sobre el atrio y se apodera del espacio con su fuerte presencia, y que hacia el exterior se transparenta hacia la ciudad a través del diafragma de celosías metálicas del séptimo piso. Su carácter solemne la dota de todas las condiciones para enseñorear el conjunto.
La Sala Augusta está flanqueada, hacia el sur, por el salón de acceso del público desde donde se disfruta plenamente del paisaje del Mar Caribe y de la perspectiva hacia la ciudad de Ovando. En el otro flanco, hacia el norte, la Sala de Deliberación, propia de cada espacio de audiencia, dispuesta en mesa redonda para acoger de manera más democrática al pleno de jueces. La apertura de la cubierta representa el contacto entre los jueces (justicia terrestre) y el cielo (justicia divina).
En los tres pisos inferiores al séptimo se disponen las Cámaras que completan el programa. Estas dependencias han permitido, al desarrollarse en la superficie admisible de cada piso, la inclusión de otros departamentos de la institución según el carácter más o menos público de los mismos. Se han vinculado verticalmente las Salas de Audiencia y sus respectivas Salas de Deliberación. La respuesta a este requerimiento de programa proveyó interesantes oportunidades de enriquecimiento, tanto en la sección del proyecto como en su expresión plástica.
Los pisos tres y dos resuelven las necesidades de la Dirección General Administrativa y de la Dirección Técnica Judicial. La biblioteca requerida por este último departamento se dispone en una doble altura entre los dos niveles, rodeada por una gran cantidad de estaciones de trabajo. El segundo nivel, más cercano a la plaza, resuelve las operaciones del departamento de Recursos Humanos.
El manejo formal y plástico está basado en el Movimiento Moderno y especialmente enraizado en la obra de Guillermo González, considerada por los arquitectos como “un catálogo de monumental importancia”. El uso del mármol travertino romano acentúa la referencia formal a los edificios del entorno construidos en 1955.

Para el diseño se partió de un elemento geométrico puro: el cuadrado, una pieza intrínsecamente perfecta, dotada de las más ricas propiedades de acoplamiento, multiplicación, división, articulación y aprovechamiento; se asumió como silueta periférica y como célula interna, como borde y como centro.
En efecto, toda la edificación se inscribe en un cuadrado. En realidad, un diagrama de nueve cuadrados grandes, interconectados jerárquicamente por otros medianos, que crean una malla en la cual organizar espacios principales y secundarios. El giro de 20 grados de algunos elementos de los bloques de circulación particularmente estudiados resulta de la apertura del boulevard de la Feria hacia el malecón. Esta malla se abre con un patio arbolado en la esquina suroeste, abriendo el edificio al mar, una manera de conectar la arquitectura y la ciudad.
Así como la geometría planimétrica respondió a una lectura pura y precisa, altimétricamente los resultados fueron similares. El estudio minucioso de la sección del conjunto permitió cumplir a cabalidad con el programa dentro del lote asignado y enriquecer al mismo tiempo la calidad del espacio y de la experiencia cotidiana misma. Cada bloque recibió un tratamiento tridimensional agudo, adaptándose con fidelidad y ligereza a la naturaleza de un espacio fluido, transformado de espacio urbano a espacio humano. Los dominios públicos y privados, hasta la más recluida esclusa de seguridad del proyecto, obedecen a una estratificación tanto planimétrica como altimétrica.
La estructura principal de la obra fue realizada en hormigón armado vaciado in situ, excepto aquellos entrepisos no expuestos al clima, que se dispusieron en viguetas doble “T” prefabricadas. Fueron colocadas algunas estructuras de acero metalizado cubiertas de cobre con formas geométricamente definidas por conos, pirámides truncadas y ojivas en los techos y en las marquesinas de la parte este y oeste, aligerando la vista del hormigón estructural que constituye la mayor parte de la edificación.
En gran medida, la propuesta arquitectónica fue determinada por los análisis realizados dentro del contexto urbano, la posición, la escala, los materiales y las referencias de terminación. Se partió del hecho de reconocer la mano de Guillermo González, el diseñador original, y de su gran legado al desarrollo de la cultura del espacio en la República Dominicana. Para los autores, toda la obra de González es un catálogo de monumental importancia.
Una propuesta coherente al sitio y a las condiciones de este proyecto no podía abstraerse a las ideas de continuidad y de enriquecimiento progresivo de la fábrica urbana de la Feria. Un proyecto resuelto solo en sí mismo, si bien podía cumplir con todos y cada uno de los requerimientos, fallaría al no tomar en consideración la sutileza de un legado cultural de singular importancia para el patrimonio y el privilegio que significó la implantación de una nueva estructura edilicia en este entorno.
Cada bloque que compone el complejo edilicio enriquece el diálogo formal de lo sólido con el vacío. Se destaca el diseño del pavimento que refuerza la cuadrícula que sirvió de patrón planimétrico, el diseño de la iluminación —pensado para destacar los elementos arquitectónicos— y la conjugación de materiales nobles, como el mármol en el piso y la madera en el plafón y los mostradores de la recepción y las estafetas, con otros de uso contemporáneo como el cristal y el acero inoxidable.
Los dos pisos superiores contienen los espacios más nobles: las salas de audiencia. Todas se acogen a las disposiciones del Nuevo Código Procesal Penal para la ubicación de los enjuiciados. Se destaca la fina terminación de los interiores y los murales realizados por maestros del pincel dominicanos.

La Sala Augusta, que vuela y se apodera del espacio del atrio, está dotada de un carácter muy solemne. El estrado se organiza en forma de hemiciclo. La Sala de Deliberación está dispuesta en forma circular para acoger al pleno de jueces en la discusión democrática. Ambos espacios se dignifican a través de las aperturas superiores.
La propuesta arquitectónica realizada por Moré y Caro no pudo abstraerse a las ideas de continuidad y de enriquecimiento progresivo de la fábrica urbana de la Feria. Según ellos, “un proyecto resuelto solo en sí mismo fallaría de no tomar en consideración la sutileza de ese legado cultural de singular importancia”. La cubierta ojival ya forma parte del nuevo perfil urbano de la ciudad.
SUPREMA CORTE DE JUSTICIA Y PROCURADURÍA GENERAL DE LA REPÚBLICA
Ubicación Av. Jiménez Moya, Centro de los Héroes Santo Domingo, R. D. Año inicio / término obra Marzo 1999 / enero 2005 Área total de construcción 30,000 m² Diseño arquitectónico Arqtos. Gustavo Moré y Juan Cristóbal Caro









