El edificio corporativo de Alaver renueva una esquina clave del centro histórico de La Vega mediante la conservación de su fachada patrimonial y la inserción de una estructura metálica contemporánea.
El proyecto organiza su programa en tres niveles destinados a servicios, oficinas y almacenamiento, mientras una envolvente de paneles traslúcidos microperforados redefine su imagen institucional, y proyecta la silueta de un framboyán y un sistema de iluminación programable. La obra equilibra eficiencia operativa, modernidad y puesta en valor del patrimonio urbano.
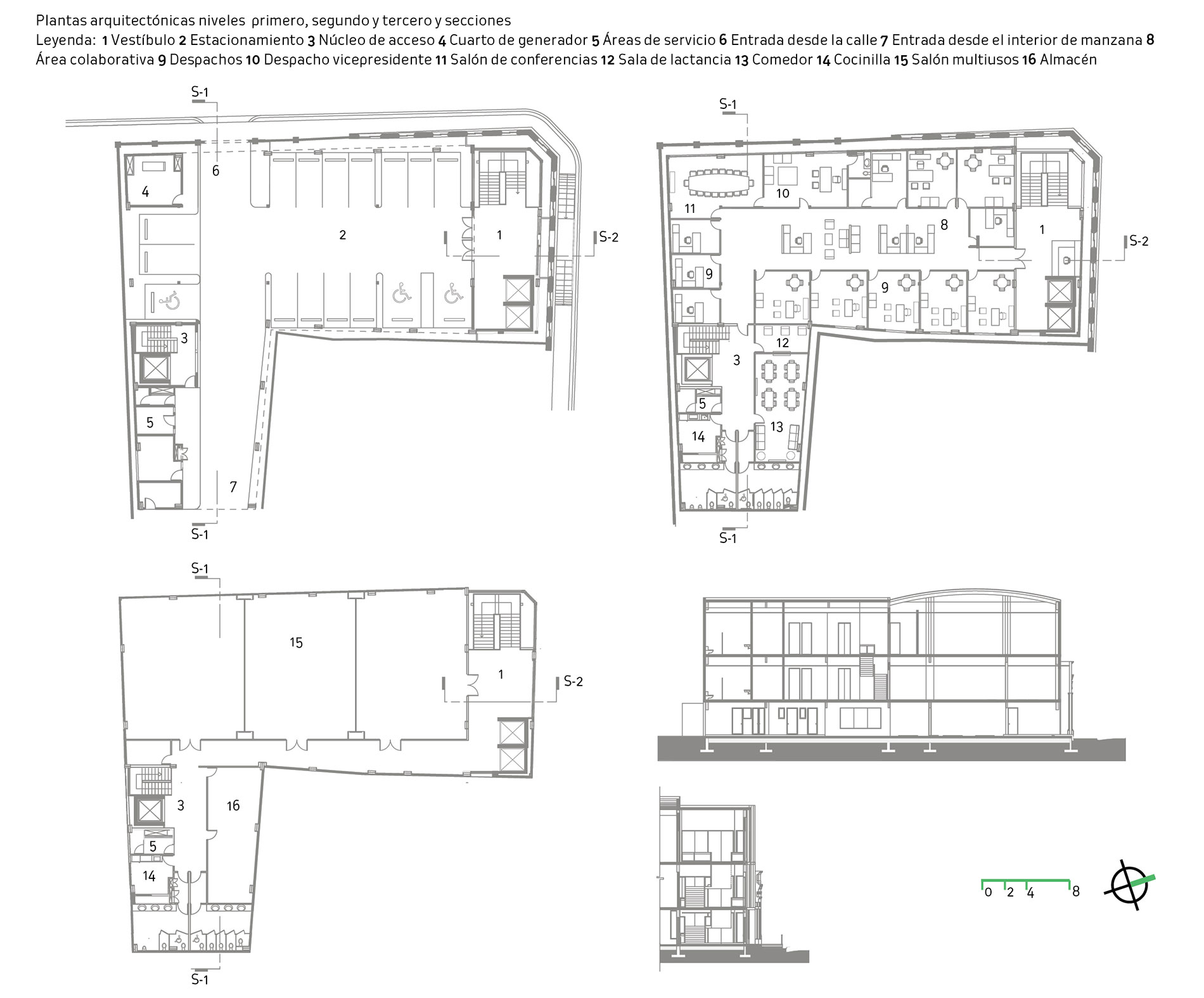
En una importante esquina del centro histórico de La Vega, formada por las calles Sánchez y General Juan Rodríguez, el nuevo edificio corporativo de la Asociación La Vega Real de Ahorros y Préstamos (Alaver) reinterpreta la arquitectura institucional contemporánea y combina la puesta en valor del patrimonio, la eficiencia operativa y una lectura respetuosa del contexto urbano. El proyecto responde al objetivo de construir un edificio comercial de tres niveles con estructura metálica: un primer nivel destinado a estacionamiento y servicios, un segundo nivel corporativo, que concentra las oficinas y áreas administrativas, y un tercer nivel concebido como un centro cívico, un espacio multiusos para actividades comunitarias que Alaver ofrece como un gesto de apertura y contribución a la ciudad.

La volumetría se organiza en torno a un acceso claramente diferenciado que aprovecha la condición de esquina como punto de articulación urbana. Este vestíbulo está vinculado directamente a la circulación vertical y permite una transición fluida hacia los niveles superiores. En el segundo nivel se concentran las funciones administrativas; se estructura mediante una circulación central que maximiza el aprovechamiento de las oficinas y garantiza un funcionamiento claro y ordenado. El programa se distribuye así: primera planta: estacionamiento general, vestíbulo, almacén, cuartos técnicos y de servicio; segunda planta: vestíbulo, oficinas, sala de reuniones y sala de espera; tercera planta: vestíbulo y un gran salón multiusos. Cada nivel incorpora áreas de apoyo que garantizan una operación continua y eficiente: cuartos técnicos, cocinilla, zonas de descanso para el personal y baños.
El interiorismo responde a un equipamiento contemporáneo. Las particiones de las oficinas se resuelven mediante tabiques modulares que facilitan la reconfiguración de los espacios y garantizan privacidad acústica. La luz natural baña las áreas de trabajo gracias a amplios cerramientos de cristal, desde los cuales se disfruta la ciudad filtrada por los paneles traslúcidos y la silueta de los flamboyanes. Predomina una paleta de colores claros en los elementos espaciales y en el mobiliario, contrastada por piezas puntuales de madera oscura.

Especial atención merece el salón multiusos, bautizado en honor a don Giovanni Bloise Guzmán, el único fundador vivo de la institución, hoy con 101 años. El salón tiene capacidad para 560 personas y está equipado con tecnología de vanguardia en sistemas audiovisuales, climatización e iluminación, lo que garantiza un desempeño óptimo para eventos corporativos y comunitarios. Sus divisiones móviles instaladas por Thema permiten subdividirlo en tres salas independientes para actividades simultáneas. Se destaca el diseño del cielo raso, conformado por plafones suspendidos que, en conjunto con la iluminación, generan una atmósfera elegante y controlada. Para mejorar el confort acústico, se incorporaron paneles fonoabsorbentes en las paredes.

Aunque el programa responde a criterios funcionales, es la intervención en fachada la que define el carácter del proyecto. El edificio conserva íntegramente la fachada de mampostería del inmueble original —una pieza de valor patrimonial para la ciudad— y la resignifica como un basamento que sostiene una intervención liviana de acero, donde tradición y contemporaneidad dialogan con claridad. La conservación del ritmo vertical, los marcos perimetrales y la composición simétrica del edificio original permiten que la nueva arquitectura se inserte sin estridencias y aporte una lectura renovada del paisaje urbano.
La operación arquitectónica se articula así en dos niveles conceptuales: la conservación de la estructura histórica y la inserción de una envolvente contemporánea. Detrás de la fachada patrimonial se levanta una estructura compuesta por columnas y vigas de acero y entrepisos de metaldeck sobre una platea de hormigón armado, lo que permitió liberar luces y adaptar la edificación a nuevos requerimientos sin alterar la imagen hacia la calle.

La nueva arquitectura se identifica en la fachada mediante paneles traslúcidos y microperforados que envuelven los niveles superiores e interpretan el patrimonio desde un lenguaje actual. Esta piel metálica proyecta la imagen de un framboyán, símbolo profundamente arraigado en la memoria colectiva vegana. Además de otorgar identidad, tamiza la luz natural, genera privacidad y calidez en los interiores y aporta un sello distintivo a la actualización del inmueble. Un detalle novedoso es la incorporación de un sistema de iluminación programable en la fachada, capaz de cambiar de color para expresar el “estado anímico” del edificio, establecer vínculos simbólicos con la comunidad o destacar acontecimientos, campañas institucionales, fechas patrias y días festivos.
Con atención al detalle, las puertas exteriores fueron resueltas con aluminio y cristal con hojas abatibles similares a las originales, sobre las que se aplicó un vinilo adhesivo con textura de madera para recrear la apariencia del inmueble anterior y mantener la coherencia estética. El resultado es un equilibrio entre permanencia y renovación, donde lo histórico y lo contemporáneo conviven sin fricciones.

En conjunto, el edificio Alaver constituye un ejercicio ejemplar de cómo la arquitectura contemporánea puede sumar valor en centros urbanos consolidados al tiempo que incorpora sistemas constructivos actuales y articula memoria, eficiencia y presencia institucional. La obra demuestra que la modernización de las infraestructuras financieras también puede ser una oportunidad para reforzar la identidad local y dignificar el entorno construido.
EDIFICIO CORPORATIVO ALAVER
Ubicación La Vega. Propietario Asociación La Vega Real de Ahorros y Préstamos para la Vivienda. Área total de construcción 628 m2. Área del solar 930.65 m2. Diseño y supervisión Arq. Gabriel Acevedo y Arq. Chantal Parra, Arq. Gabriel Acevedo y Asocs. Restaurador de fachada José Enrique Delmonte. Colaboración Arq. Yolanda Martínez. Consultores. Estructural Ing. Leudy Lizardo. Eléctrico Ing. Miguel Abreu. Sanitario Ing. Enrique Elías. Mecánica de suelos Ing. Enrique Veras. Colaboración en interiorismo Moré y Wiese. Construcción Arq. Ricardo Abreu, Ing. César Arturo, Abreu y Asociados. Cabinas sanitarias fenólicas, revestimientos acústicos y tabiques Thema




