La Casa L. A. de Jarabacoa interpreta la relación entre arquitectura y naturaleza mediante una estrategia de apertura y fluidez espacial.
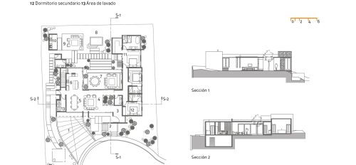
Desarrollada en un solo nivel sobre un terreno accidentado, la residencia integra áreas sociales, jardín interior y vistas panorámicas hacia las montañas y desdibuja los límites entre interior y exterior.
El uso de piedra, madera y bloques calados, junto con un interiorismo de colores neutros y vegetación integrada, crea una atmósfera cálida y serena que invita a la contemplación cotidiana.
Ubicada en la urbanización cerrada La Z Residence, en el centro del pueblo de Jarabacoa, la Casa L. A. busca generar una simbiosis entre el contexto físico del emplazamiento y la obra arquitectónica, al tiempo que integra de manera armónica sus ambientes sociales.

El encargo delineó una visión clara con tres requisitos principales que guiaron cada decisión de diseño: desarrollar el programa habitable en un solo nivel, maximizar las vistas panorámicas hacia las majestuosas montañas circundantes, y concebir una residencia que, aun siendo modesta en dimensiones, irradiara intención y significado en cada uno de sus espacios.
De esta premisa surge la idea de elevar la residencia en el punto intermedio de la topografía accidentada del terreno, lo que permitió aprovecharlo para crear un espacio de estacionamiento semisubterráneo. Al desarrollarse en un solo nivel, el proyecto logra una conexión fluida y directa entre los espacios internos y la naturaleza que los rodea.
El proyecto se articula en torno a un concepto de apertura, las áreas sociales y la cocina se integran completamente entre sí y con el exterior a través de grandes ventanales. El jardín interior está concebido como núcleo central de la vivienda y refuerza esta continuidad al permitir que la luz y la vegetación formen parte de la vida cotidiana. Así, la residencia se abre al frente hacia las montañas y al fondo hacia el patio, y desdibuja los límites entre interior y exterior.

El diseño arquitectónico fue concebido para crear espacios de encuentro y contemplación que reflejaran el estilo de vida de sus residentes: social, dinámico y en conexión constante con la naturaleza.
El uso de materiales característicos de la zona —como la piedra natural y la madera— junto con muros de bloques calados permite crear un ambiente acogedor que responde a su contexto y aprovecha las condiciones climáticas y de iluminación natural. La luz desempeña un papel protagónico en los ambientes interiores, ingresa a través de grandes ventanales y sutiles aperturas en la losa de techo ubicadas en espacios como el jardín interior, el pasillo hacia los dormitorios y sobre la tina en el baño principal.
El diseño interior fue planteado como una continuidad de los elementos arquitectónicos de la residencia, concebida como un todo desde adentro hacia afuera, tomando en cuenta la experiencia que generaría cada muro, textura y entrada de luz. Con un enfoque en colores claros y neutros contrastados por el verde oscuro de las puertas —que se convirtieron en un objeto de diseño—, materiales de procedencia natural como la madera y la piedra, y con la integración de la vegetación, se aportó calidez y se configuraron espacios con personalidad propia, una profunda sensación de serenidad y tranquilidad que define la esencia de la obra.

La Casa L. A. es más que una residencia: es una experiencia de contemplación cotidiana entre luz, materia y paisaje. Definida por su diseñadora, la arquitecta Nadia Guzmán, como “una casa para vivir entre luz y paisaje, una residencia que desdibuja límites”, la obra se convierte en un manifiesto de integración entre arquitectura, entorno y vida cotidiana.
CASA L. A. (2025)
Ubicación La Z Residence, Jarabacoa. Área total de construcción 315 m2. Área del lote 773.78m2. Diseño arquitectónico Nadia Guzmán, Emedos Proyectos. Diseño paisajístico Arq. Elvis Tejada. Consultores. Estructural y sanitario Ing. José López. Eléctrico Ing. José Paulino. Contratista general Emedos Proyectos.




