Villa Valeria fue diseñada por el equipo de Selman Arquitectos en Casa de Campo y se concibe como una residencia tropical contemporánea que maximiza las vistas al mar y al campo de golf. Distribuida en dos niveles, integra espacios sociales de doble altura, terrazas y un gazebo independiente alrededor de una piscina infinita.
Su materialidad combina travertino, madera sintética y carpinterías ligeras, y genera ambientes frescos y elegantes. La organización espacial está marcada por un eje central visual, y articula confort, privacidad y una estrecha relación con el paisaje caribeño.
Villa Valeria es una exclusiva residencia ubicada en el sector de Costamar, dentro del reconocido complejo de Casa de Campo, en La Romana. Implantada sobre una parcela privilegiada con vistas abiertas al campo de golf y al mar Caribe, la villa se concibe como un ejercicio de síntesis entre arquitectura tropical contemporánea y elegancia residencial de alto nivel. El proyecto alcanza un área total construida de casi dos mil metros cuadrados, de los cuales aproximadamente un 23 por ciento corresponde a espacios techados abiertos, un programa integral que combina confort, amplitud y conexión directa con el paisaje.

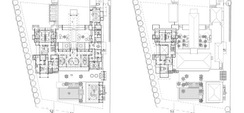
El diseño responde a la visión del arquitecto Rafa Selman, quien asumió como premisa principal maximizar la relación entre los espacios interiores y el entorno natural. La villa se organiza en dos niveles principales articulados en torno a un eje visual que estructura la experiencia de llegada y recorrido. Desde la marquesina de entrada, una pasarela cubierta flanqueada por espejos de agua y jardines guía al visitante hacia el vestíbulo. Este gesto arquitectónico prepara la transición hacia el interior, donde la mirada es conducida hacia el horizonte y el mar, enmarcado por la piscina infinita que se funde en el paisaje.
La volumetría combina planos horizontales con techos inclinados de inspiración tropical, resueltos con un lenguaje contemporáneo de líneas sobrias y proporciones equilibradas. La materialidad refuerza esta dualidad: revestimientos de travertino, maderas sintéticas y carpinterías ligeras se conjugan para aportar calidez y atemporalidad, y dialogan tanto con el clima caribeño como con el carácter elegante de Casa de Campo.

El corazón de la villa se produce en el primer nivel, donde un gran salón de doble altura integra estar, comedor y estudio mediante puertas corredizas que desaparecen al abrirse y generan continuidad con la terraza exterior. Este espacio central disfruta de vistas directas al mar y establece un núcleo de convivencia que se expande hacia el exterior.
A la izquierda del salón se organizan las áreas de servicio: cocinas caliente y fría, despensa, comedor de apoyo, lavandería y dormitorios de servicio. Esta disposición garantiza eficiencia funcional y circulación diferenciada. Al lado opuesto, un bloque de dos niveles concentra las áreas privadas: en planta baja se distribuyen cuatro habitaciones secundarias, todas con baño en suite y vestidor [walk-in closet], con privacidad y confort.

El programa del primer nivel también incluye un dormitorio principal con salida directa a la terraza y al jardín. Este espacio incorpora baño con jacuzzi, ducha exterior y un vestidor generoso, un retiro íntimo dentro de la residencia. En los dormitorios, la relación con el exterior se refuerza mediante jardines interiores y duchas exteriores que difuminan los límites entre dentro y fuera.
El bloque superior aloja tres dormitorios adicionales, entre ellos una segunda suite principal de gran amplitud, con baño, vestidor y terraza privada con vista al mar. El nivel se completa con una barra húmeda [wet bar] y áreas de apoyo que refuerzan su carácter autónomo. Esta organización permite que la villa acoja cómodamente a un gran número de huéspedes, siempre con una experiencia de exclusividad y confort.

La vida en Villa Valeria se extiende hacia el exterior a través de una terraza techada que prolonga las áreas sociales. Desde allí se accede a la terraza de la piscina, con un gazebo independiente como núcleo de socialización y reuniones. Este volumen ligero funciona como punto focal del conjunto y establece un espacio privilegiado para disfrutar del clima y el paisaje. El diseño paisajístico se integra cuidadosamente a la arquitectura. Jardines lineales, espejos de agua y áreas verdes complementan la composición volumétrica con transiciones suaves y atmósferas de serenidad. La piscina infinita está orientada hacia el campo de golf y el mar, esto refuerza la sensación de continuidad espacial y conecta la experiencia hogareña con el horizonte lejano.

La selección de materiales apuesta por la durabilidad y el bajo mantenimiento sin renunciar a la elegancia. Los pisos y revestimientos de travertino aportan frescura y luminosidad, la madera sintética de techos y pérgolas resuelve la exigencia climática con una estética cálida, mientras que los cerramientos de vidrio y aluminio ligero maximizan la transparencia.
El interiorismo concuerda con el concepto arquitectónico: privilegia la neutralidad y la amplitud. Muebles de líneas limpias, tapizados claros y piezas artesanales dominicanas se combinan para crear ambientes confortables, frescos y elegantes. La doble altura del salón central refuerza la monumentalidad del espacio, mientras que la iluminación natural y la ventilación cruzada garantizan eficiencia climática y confort ambiental. La atmósfera se enriquece además con una curaduría de arte que incluye obras de Boa Mistura en el gran salón, así como piezas de García Cordero, Clara Ledesma, Julio Valdez y otros artistas. Estas intervenciones artísticas no solo embellecen los espacios, sino que aportan carácter cultural y establecen un diálogo directo entre la arquitectura y las artes visuales.
La Villa Valeria se inscribe en una tradición de arquitectura tropical que ha evolucionado hacia expresiones contemporáneas. Los techos inclinados garantizan ventilación y drenaje, mientras que los planos horizontales y los cerramientos de cristal introducen un lenguaje actual. La obra consigue armonizar un estilo de vida elegante con las particularidades climáticas y culturales del Caribe, un modelo de vivienda de lujo adaptado a su contexto.
Más allá de su escala y programa, la villa propone una experiencia de habitar centrada en la integración con el paisaje y la calidad de los espacios. Desde la llegada a través de la pasarela hasta la expansión hacia el gazebo o la contemplación del mar desde las terrazas privadas, cada recorrido refuerza la noción de continuidad y fluidez espacial. En este sentido, la arquitectura trasciende la función doméstica para convertirse en escenario vital en el que convergen naturaleza, confort y diseño.
VILLA VALERIA (2024)
Ubicación Casa de Campo, La Romana. Área de construcción 1,856.40 m2. Área del lote 4,746.52 m2. Diseño arquitectónico y supervisión Selman Arquitectos. Diseño de interiores María Elmufdi. Diseño de iluminación MAVA, María Alejandra Varela. Diseño paisajístico PWP, Lowell Whipple, Ana Portela y Clara Portela. Consultores. Estructural Ing. Randy Tejada. Eléctrico Ing. Cándida Díaz. Sanitario Ing. Magda Duarte. Sistemas de a/a Ing. Álvaro Guzmán. Contratista general Constructora Aybar





