El rescate del histórico Hotel Mercedes constituye uno de los proyectos más relevantes de conservación y readecuación del patrimonio arquitectónico moderno en el centro histórico de Santiago de los Caballeros. Impulsada por Banreservas y acompañada por la Oficina Nacional de Patrimonio Monumental, la intervención articula una arquitectura contemporánea capaz de armonizar lo nuevo con lo antiguo, y conservar la esencia del inmueble mientras incorpora nuevos programas y tecnologías. La transformación del antiguo hotel en el Centro Cultural Banreservas y sede del Museo de Arte de Santiago implicó integrar las funciones expositivas al edificio existente, y redefinir criterios espaciales, técnicos y museográficos.
El resultado es una obra que equilibra rigor patrimonial y arquitectura contemporánea, y revela una nueva capa de significado sin diluir el valor histórico del edificio.
El Hotel Mercedes fue construido en 1928 por el ingeniero español Romualdo García Vera e inaugurado el 9 de abril de 1929, y durante décadas fue uno de los principales centros de la vida social de Santiago. Propiedad de los hermanos Gabriel y Francisco Robledo, el inmueble fue arrendado en 1930 a Alfonso Aguayo Silva, quien le dio su nombre en honor a su esposa, Mercedes Ceara. Su arquitectura temprana de hormigón armado es una de las primeras de este material en la ciudad, autoría de Romualdo García Vera, su roof garden y sus salones acogieron eventos históricos, transmisiones radiales, celebraciones y el paso de numerosas personalidades nacionales e internacionales. Fue concebido originalmente con una planta claustral organizada en torno a un hueco circular de triple altura, e integraba elementos ornamentales de notable riqueza: mosaicos hidráulicos, cerámicas y azulejos, un gran salón sostenido por columnas dóricas, balcones con ménsulas talladas, y un sistema de vanos cuya composición variaba en cada nivel. Su antigua torre-esquina —un linternón hexagonal con crestería de madera— acentuaba la perspectiva entre las calles 30 de Marzo y Máximo Gómez, un símbolo urbano. Tras cesar sus operaciones, el edificio quedó en desuso hasta que Banreservas decidió rescatarlo y otorgarle una nueva vocación cultural.

Arquitectura original
La fachada del Hotel Mercedes se destaca por el lenguaje expresivo y un manejo ornamental diferente en cada nivel: vanos rectangulares en el nivel de calle, arcos de medio punto en el segundo nivel y arcos poligonales en el tercero, todo unificado por cornisas sobrias y balcones sostenidos por ménsulas finamente elaboradas. En el interior, un amplio salón de doble altura, columnas dóricas, una arcada sobre pedestales casetonados y un zócalo decorativo de 120 centímetros recorrido por losetas hidráulicas revelan el carácter representativo del primer nivel. Los pisos superiores, concebidos para habitaciones con baño, se abren al pasillo claustral mediante balaustradas de pilotillos torneados, mientras las vigas estructurales vistas —con distintos peraltes y acanaladuras decorativas— evidencian la lógica tectónica del hormigón armado, propio del periodo. Esta combinación de estructura moderna y decoración artesanal definió la identidad del inmueble y constituyó la base conceptual sobre la cual se planteó su restauración.

Intervención arquitectónica
La conversión del Hotel Mercedes en el Centro Cultural Banreservas exigió una operación integral en la que restauración, actualización técnica y arquitectura contemporánea debían coexistir en equilibrio. Desde el inicio, dos condiciones marcaron el rumbo del proyecto: la existencia de un reforzamiento estructural previamente diseñado y en ejecución, y la participación permanente de la Oficina Nacional de Patrimonio Monumental, que definió los límites de intervención y los criterios de conservación.
Por ello se estableció que todas las fachadas serían restauradas sin intervenciones contemporáneas, para rescatar cornisas, balcones, vanos y ornamentaciones. El reto mayor fue la cubierta original, un techo de cerchas de madera totalmente deteriorado. Su morfología histórica se restituyó, pero la estructura fue reconstruida íntegramente con acero para garantizar durabilidad y seguridad. También se reconstruyó el linternón desaparecido, gracias al análisis de registros fotográficos y a la supervisión técnica dirigida por el arquitecto César Payamps.

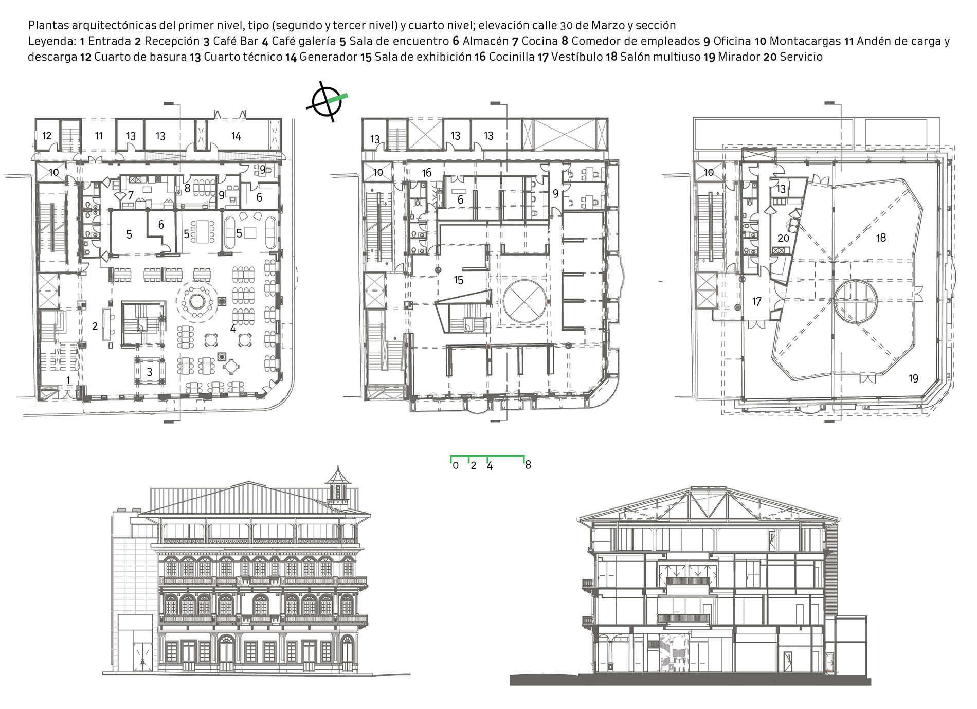
El nuevo uso cultural necesitaba sistemas y áreas de servicio que el edificio histórico no podía alojar. Para ello se incorporaron dos volúmenes anexos, concebidos con lenguaje contemporáneo que dialoga sin mimetizarse: el anexo hacia la calle Máximo Gómez aloja la entrada principal, los ascensores, escaleras, montacargas y rutas de evacuación, y el anexo técnico en el solar posterior integra generadores, bombas, sistemas contraincendios, datos y seguridad. Estos cuerpos liberan la pieza patrimonial de cargas funcionales incompatibles con su estructura y permiten que el centro cultural funcione con estándares museográficos actuales.
En el volumen que acoge la nueva entrada y la circulación vertical se destaca un portal abocinado de acero autopatinable corten que contrasta con el revestimiento de mármol travertino del cuerpo contemporáneo. Este volumen queda “abrazado” por la cornisa del edificio original, con el que armoniza en proporción y escala, un gesto que enfatiza el respeto al patrimonio y la intención de insertar lo nuevo sin competir con la presencia histórica del inmueble.
Dentro de los trabajos de restauración de las fachadas se conservó la herrería casi centenaria y se intervinieron numerosos elementos ornamentales. Las ménsulas y cornisas solo requirieron resane ya que eran de hormigón y se encontraban en buen estado, mientras que las balaustradas faltantes se reprodujeron siguiendo los modelos existentes. Se rescataron varios mosaicos de cristal aplicados en los muros y se reconstruyeron aquellos que se habían perdido. La ebanistería se repuso respetando el diseño original, incluidos sus vitrales: los medios puntos son originales y los demás se reprodujeron fielmente. Las piezas recuperadas se integraron en las oficinas como forma de conservar la memoria histórica del inmueble.

El plafón del vuelo superior de la cubierta inclinada se reconstruyó conservando la misma apariencia del original, mediante tablas ranuradas de fibrocemento, una solución que garantiza durabilidad y facilita el mantenimiento. También se restauraron las tuberías pluviales y se incorporó un colector oculto tras la cornisa superior. En la acera, el pavimento se reconstruyó reproduciendo el diseño de adoquines con el nombre hotel mercedes, presente históricamente en ambas calles. El diseño de iluminación exterior fue concebido para destacar todos estos detalles y revelar la riqueza del conjunto durante la noche.
Reconfiguración interior: de hotel a museo
La intervención interior buscó reinterpretar la tipología hotelera sin borrar su memoria. En el primer nivel se recupera la vocación original del edificio al restablecer el salón social como un espacio de encuentro para la ciudad. Con un modelo de operación comercial, el área será gestionada por una empresa concesionaria, mientras que Banreservas incorpora salones de reunión que dan apoyo a las actividades culturales y eventos vinculados al centro histórico. Este nivel también organiza el ingreso al centro cultural mediante una nueva entrada con área de acreditación, así como una tienda de artesanías y promoción institucional, un vínculo directo entre el edificio y la vida urbana.
El color neutro aplicado en las paredes surge de una cuidadosa lectura de los ambientes originales. Los muros exteriores vieron aumentado su espesor debido al reforzamiento estructural, lo que obligó a ampliar las jambas en numerosos cerramientos. En algunos casos, el refuerzo truncó los arcos existentes; se decidió no reconstruirlos ni reproducir la ornamentación de las columnas intervenidas para hacer explícita la huella contemporánea de la restauración. Los mosaicos hidráulicos originales, en mal estado, fueron quitados, pero se reprodujo el diseño histórico —tanto en patrón como en color— en los espacios donde correspondía. Aquellas piezas que pudieron recuperarse se reutilizaron en oficinas y baños, por su valor material y simbólico.

Se conservó también un tramo de la escalera original, la que conduce al segundo nivel: se restauró toda la balaustrada de madera, se renovó el granito del piso y se enriqueció el conjunto con un pequeño ámbito de memoria histórica en el que se integraron fotografías y piezas recuperadas durante la intervención, un vínculo entre el edificio y su pasado. En el segundo y tercer nivel se desarrolla el Museo de Arte de Santiago. Las antiguas habitaciones se transformaron en rincones expositivos, y se mantuvo su escala y ritmo. Un recorrido periférico continuo atraviesa estos espacios y crea una secuencia museográfica íntima y variada. En el centro, el protagonista es el óculo que se recuperó y se potenció como elemento de interconexión espacial que proporciona luz natural y articula verticalmente los cuatro niveles. Las balaustradas originales se conservaron y fueron elevadas sobre un muro bajo para garantizar mayor protección y cumplir con los estándares actuales de seguridad.
El cuarto nivel recibió la transformación más contemporánea y significativa: un salón multiusos climatizado bajo la cubierta reconstruida que revela la estructura metálica y crea una especie de candelabro virtual como gesto de actualidad. En ese diálogo se mantiene el carácter de la antigua terraza ajardinada a través de una galería perimetral abierta que conserva la relación visual con Santiago y la percepción histórica del volumen desde el exterior. Un lucernario central completa el gesto contemporáneo: su luz incide sobre el óculo que se convierte en un piso acristalado continuo —un sistema de vidrio templado apoyado en una estructura metálica reforzada— que desciende hasta el primer nivel, conecta todo el edificio y le proporciona luz natural, uno de los recursos más interesantes de la intervención. Para el arquitecto Jael García, “ese gesto, sumado a la continuidad espacial que conecta los distintos niveles del edificio, define el verdadero territorio de la intervención contemporánea. Éramos conscientes del peso del rescate patrimonial, pero también de la necesidad de aportar una nueva capa histórica. Queríamos que el proyecto dejara claro lo que se hace hoy, en armonía con lo que siempre fue”.

El desarrollo del proyecto es el resultado de la colaboración institucional entre el equipo de arquitectos de Jael García y Asociados con Plácido Piña como arquitecto asociado, en estrecha articulación con la Oficina Nacional de Patrimonio Monumental que hizo posible un trabajo meticuloso de restauración y de conservación. La intervención demuestra que es posible actualizar un inmueble histórico con nuevas capacidades técnicas y programáticas sin sacrificar su autenticidad, que la arquitectura conserve su memoria y, al mismo tiempo, incorpore una nueva capa significativa en la historia urbana de Santiago. Como expresa el arquitecto García, “diríamos que no somos una firma especializada en restauración, pero sí contamos con la sensibilidad necesaria y, sobre todo, comprobamos que es posible trabajar de la mano con las instituciones para lograr un resultado de amplio consenso”. El resultado es un edificio que vuelve a ser un punto de encuentro para la ciudad, ahora como espacio cultural, expositivo y comunitario, preparado para recibir nuevas formas de habitar la cultura en el siglo XXI.
Plantas arquitectónicas del primer nivel, tipo (segundo y tercer nivel) y cuarto nivel; elevación calle 30 de Marzo y sección
CENTRO CULTURAL BANRESERVAS. HOTEL MERCEDES (2025)
Dirección C. Máximo Gómez, Santiago de los Caballeros. Construcción original Ing. Romualdo García Vera (1928-1929). Propietario Banco de Reservas de la República Dominicana (Banreservas). Área total de construcción 3,200 m2. Área del lote 2,970 m2. Diseño arquitectónico Arq. Ja’el García, Arq. Plácido Piña, Arq. Elaine Abreu (J. García Martínez y Asocs.). Conservación y restauración Arq. César Payamps (Dirección Nacional de Patrimonio Monumental). Colaboradores Arq. Paola Figuereo. Diseño estructural Ing. Leonardo Reyes Madera. Diseño eléctrico Ing. Cándida Díaz. Diseño sanitario Ing. Magda Duarte. Diseño sistemas mecánicos y de a/a Ing. Carlos Socías. Diseño interior y decoración Arq. Omar Rodríguez Cunillera. Diseño de iluminación Ing. Cándida Díaz. Contratista general Ing. Víctor Fondeur y Asocs. Supervisión arquitectónica Vicepresidencia de Ingeniería de Banreservas



