A finales del pasado año fue inaugurada la primera etapa del complejo comercial y administrativo más grande de nuestro país, siendo considerado al mismo tiempo como el más moderno y exclusivo del Caribe. El complejo está formado por el Centro Comercial Acrópolis y la Torre Citibank y está localizado en la periferia del Polígono Central (distrito central de la ciudad de Santo Domingo), sobre la avenida Winston Churchill.
La plaza y la torre, en su conjunto, alojan 100 locales en cuatro niveles comerciales, 30 kioscos diseminados en las áreas de circulación de la plaza, 16 pisos de oficina con 1,152 m² de superficie neta cada uno y tres pisos para facilidades de servicio e instalaciones mecánicas. Cuentan, además, con un estacionamiento soterrado de cuatro niveles con capacidad para más de 800 vehículos.
Acrópolis acoge las más reconocidas tiendas y boutiques internacionales y nacionales, un complejo de siete salas de cine de uno de los operadores más grandes de la región, importantes cadenas de restaurantes y comida rápida y el centro de entretenimiento de videojuegos más grande del país.

El diseño del complejo —que estuvo a cargo del arquitecto Richard Knorr y un prestigioso equipo de profesionales extranjeros y locales— se realizó de acuerdo con los códigos internacionales de diseño y construcción más recientes y teniendo en cuenta, muy especialmente, las normas para la resistencia sísmica y ciclónica. El conjunto posee energía propia, servicios garantizados, 15 ascensores, cuatro escaleras eléctricas y los sistemas de seguridad de vida, de telecomunicaciones y de ventilación mecánica más avanzados.
LA PLAZA
Conceptualmente el diseño de la plaza hace referencia al lenguaje formal y espacial de la arquitectura naval. Esta intención queda explícita, en el interior, por la forma de barco del atrium —situado en la parte central de los niveles de la plaza— que posee cubierta de lona y alrededor del cual se desarrollan los locales comerciales. Mientras que en el exterior, dicha volumetría emerge de todo el conjunto como la proa de un barco. Asimismo, el volumen de la torre simula las velas de una gran nao, haciendo alusión a los inicios de la era comercial, donde las grandes naves marítimas constituían elementos primordiales para el intercambio.
El conjunto ocupa un lote de aproximadamente 8,000 m², correspondiente a una manzana completa, lo cual permite accesos múltiples. La plaza consta de cinco niveles, de los cuales el quinto aloja las instalaciones de servicio. El nivel de la calle es aquel por el cual se realiza el acceso al complejo y, además de acoger el vestíbulo principal de la torre, cuenta también con locales comerciales.

El acceso principal de la plaza se encuentra en la esquina suroeste y se realiza a través de una gran escalinata revestida de piedra coralina que conduce desde el nivel de la acera al primer nivel. Le siguen en importancia el acceso principal a la torre sobre la avenida Winston Churchill y un tercer acceso sobre la calle Andrés J. Aybar. Se disponen además otros accesos a través de los locales comerciales ubicados en las esquinas restantes. El acceso al estacionamiento se realiza por la calle posterior.
A partir del primer nivel de la plaza y hasta el tercer nivel los locales comerciales se organizan a partir de galerías que rodean el atrium. Este es un gran espacio de triple altura cuya planta en forma de ojal se ensancha sucesivamente en los niveles superiores, soportándose en una estructura de columnas metálicas, a la cual se sujetan además las barandillas metálicas de línea moderna que aseguran la circulación.
En el extremo este del atrium se ubican las escaleras mecánicas y en el oeste una sencilla escalera metálica conduce del segundo al tercer nivel. El eje central transversal del atrium se aprovecha para la circulación y abre hacia otras áreas de locales comerciales. En el tercer nivel estos pasillos se convierten en una pasarela que conecta el área de las salas de cine con el centro de recreación. En este mismo nivel se ubican las áreas de comida o food court.
La cubierta del atrium es otro de los elementos innovadores del proyecto: está hecha de lona Birdair, un material sintético especial fabricado por la compañía neoyorquina del mismo nombre sobre la base de una mezcla de polímeros y teflón con una gran resistencia a los efectos climáticos y a los impactos. Esta cubierta está sujeta por un sistema de cables y tensores. Entre sus principales características está la de mantener la tensión con la que fue instalada. Además es translúcida, dejando pasar la luz en un porcentaje aproximado de un 60 %.
Todos los pisos interiores son de granito salvo los del nivel de calle y los de las áreas de comida del tercer nivel, los cuales por razones de mantenimiento se realizaron en porcelanato. Para las superficies de techo y plafones se utilizaron paneles de sheetrock.
Un elemento importante del diseño interior de la plaza es el trabajo de imagen comercial. Para ello fue contratada la firma norteamericana Gensler, especializada en este tipo de trabajo. El diseño implementado varió de la concepción original, que proponía una imagen conservadora, basada en el uso de la madera y que mantenía la alusión al diseño naval. La nueva imagen antepone criterios y elementos en los que se priorizan elementos con mayor colorido con miras de conseguir un carácter más alegre y de mayor diversión.
El centro comercial está segmentado; se utilizan cinco personajes que identifican las diversas áreas del mismo y se hacen presentes a través de elementos gráficos sobre el piso o en el techo y se convierten en los iconos a partir de los cuales se desarrolla todo el sistema de señalización. Estos personajes son el colibrí, el hipocampo o caballito de mar, el pez dorado, el carey y la libélula.
ESTACIONAMIENTOS
El proyecto consta de cuatro niveles y medio soterrados de estacionamientos con capacidad para 810 vehículos. Cada entrepiso posee una superficie total de 8,000 m² y una altura de 3.20 m. La estructura está conformada por pórticos de hormigón armado, siendo las vigas y las losas postensadas. Al igual que el resto del edificio, todo el sótano está provisto de un sistema contra incendio.
El primer nivel acoge además de los estacionamientos, el depósito de combustible (gas oil) para las dos plantas de emergencia del proyecto, los cuartos de paneles de distribución eléctrica, patinillos para entrada y expulsión de aire y extractores de línea para los gases (monóxido de carbono). Consta además de áreas de almacenamiento y un núcleo de tres ascensores que acceden al nivel de la calle y al primer nivel de la plaza comercial.
El segundo nivel tiene las mismas instalaciones, más la central telefónica del proyecto y dos cuartos que alojan las subestaciones eléctricas. En el tercer y cuarto nivel se ubican los cuartos de paneles de distribución eléctrica.
SISTEMA ESTRUCTURAL
El conjunto fue concebido como tres grandes sistemas estructurales independientes, uno para cada componente del complejo: la plaza, el atrium y la torre; cada uno de estos sistemas posee características diferentes.

La plaza está conformada por una estructura de ocho niveles —los cuatro primeros, soterrados, corresponden a los estacionamientos— con losas y vigas de concreto postensado y columnas de concreto reforzado formando pórticos dúctiles en dos direcciones resistentes a cargas laterales.
Para el atrium, que posee una altura de cuatro niveles, se prefirió el uso de estructuras metálicas, debido a su concepción espacial de gran altura y la forma de la planta, que varía en elevación.
La torre se trabajó como un sistema mixto con muros y pórticos en dos direcciones, una estructura con cuatro niveles de sótanos y 22 niveles de locales comerciales y oficinas. Las losas fueron construidas en concreto postensado, las vigas y columnas de concreto reforzado fueron vaciadas en sitio, al igual que los muros, conformando un sistema estructural altamente resistente a cargas laterales imprevistas como sismos y vientos.
Entre ambas estructuras, la de la plaza y la de la torre, se introdujo una junta de expansión debido al cambio de materiales y la diferencia de altura que existe entre las dos.
SISTEMA DE CERRAMIENTO
La envolvente o sistema de cerramiento del edificio es una combinación de pilastras y muros revestidos de granito importado de Brasil y un sistema de muro cortina de cristal y aluminio especialmente diseñado. Es el primer proyecto en nuestro país en presentar este tipo de sistema.
El sistema de muro cortina consta de marcos de aluminio con cristal sujeto con rieles en sus cuatro lados con tapas exteriores que permiten esconder la tornillería. Los cristales utilizados poseen aislamiento térmico y acústico.
SISTEMA DE CONTROL
El proyecto consta de un sistema de control que supervisa y controla todos los sistemas eléctricos y electromecánicos del edificio, incluyendo medición de consumos, control de accesos, manejo del aire acondicionado, ventilación, iluminación, sistema contra incendio y sistema de seguridad.
Con un vistazo a todas estas especificaciones es indudable que el complejo comercial y administrativo Acrópolis marca un hito para el sector del diseño y la construcción, permitiendo ampliar la visión hacia nuevos sistemas y métodos constructivos.
Plantas arquitectónicas del nivel de calle y primer nivel de la plaza.
Plantas arquitectónicas del segundo y tercer nivel de la plaza.
Secciones transversal y longitudinal del conjunto.
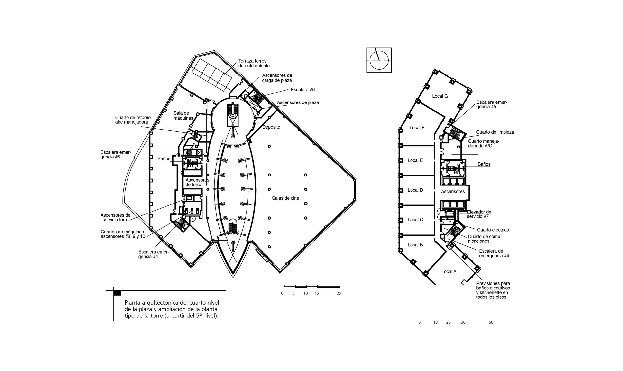
Planta arquitectónica del cuarto nivel de la plaza y ampliación de la planta
tipo de la torre (a partir del 5º nivel).
Sección longitudinal de la plaza.
ACRÓPOLIS CENTER & CITIBANK TOWER
Ubicación Av. Winston Churchill, Santo Domingo Propietario: Renaissance Development Corporation Diseño arquitectónico: VOA Associates Incorporated Arquitectos asociados: Montenegro + Valdez Arquitectos Diseño estructural: Ing. Julio Hiraldo & Asociados Diseño mecánico: Aldebot & Asociados S.A. Diseño eléctrico: Ingenieros Sanitarios Consultores S.A. Diseño de imagen: Gensler, Houston Diseño de iluminación: Luz & Forma Dirección general de obra: Ernesto W. Morel




