Canopy Living en Las Carmelitas, Santiago, es un proyecto residencial de viviendas unifamiliares que propone una forma de habitar en la que la arquitectura se funde con la naturaleza para ofrecer un entorno contemporáneo y seguro.
Las 24 residencias personalizadas privilegian la luz, la amplitud y la conexión con el paisaje, mientras que los espacios comunes promueven encuentro, movimiento y bienestar.
La calidad de los materiales y el cuidado en cada detalle consolidan un ambiente exclusivo, sereno y en armonía con lo esencial: vivir bajo la sombra protectora de los árboles, en equilibrio entre confort y naturaleza.

Canopy Living es un proyecto residencial que surge de la búsqueda de un equilibrio entre el habitar contemporáneo y la esencia protectora de la naturaleza. Concebido como un espacio cerrado y seguro, ofrece 24 viviendas completamente personalizadas que responden a las particularidades de cada familia para habitar bajo la sombra de un gran techo natural: la copa de los árboles.
El concepto rector se inspira en la idea del canopy, la cubierta que generan los árboles y que funciona como resguardo natural para los seres vivos que habitan debajo de ella. “Buscamos una arquitectura que no compita con el entorno, sino que lo complemente y genere un ambiente armónico donde la vida doméstica conviva en equilibrio con el paisaje”, explican las arquitectas del proyecto.

El plan maestro se despliega en un trazado lineal que organiza las viviendas a lo largo de una vía interna, un recorrido enmarcado por la vegetación. La calle principal combina dos texturas distintas de pavimento, lo que añade dinamismo y cierto carácter de misterio a la experiencia de transitar el conjunto.
Cada parcela cuenta con dimensiones generosas que oscilan entre 600 y 1,000 metros cuadrados, esto permite implantar la vivienda con amplias franjas verdes en laterales, frente y patio posterior, con privacidad y continuidad paisajística. El paisajismo está concebido como protagonista del proyecto e integra especies locales de palmas, árboles de gran porte, arbustos y césped que no solo embellecen, sino que regulan el microclima, ofrecen sombra y refuerzan la convivencia comunitaria.

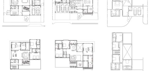
Las residencias se desarrollan en tipologías que van de 458 a 577 metros cuadrados de construcción, con configuraciones que responden a diferentes estilos de vida. El conjunto ofrece casas de tres a cuatro habitaciones, todas con baño privado y vestidor, a las que se suman estudios, salas familiares y terrazas según el tipo de unidad.

Las áreas sociales de planta baja integran sala, comedor, cocina, terraza techada y jardín, en una fluida conexión interior-exterior. En los niveles superiores se concentran las áreas privadas, complementadas con estancias familiares y balcones en algunas tipologías. Los techos altos y los amplios vanos enmarcan la presencia de la luz natural y el paisaje, esto refuerza el vínculo con el entorno vegetal que caracteriza al proyecto. Cada vivienda cuenta con garaje para dos o tres vehículos y entre cuatro y cinco baños, lo que garantiza comodidad y funcionalidad. La personalización fue un proceso central: cada unidad se diseñó mano a mano con sus propietarios, asegurándose de que el espacio se adaptara a sus necesidades actuales y proyectara flexibilidad hacia el futuro.
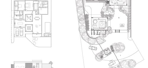
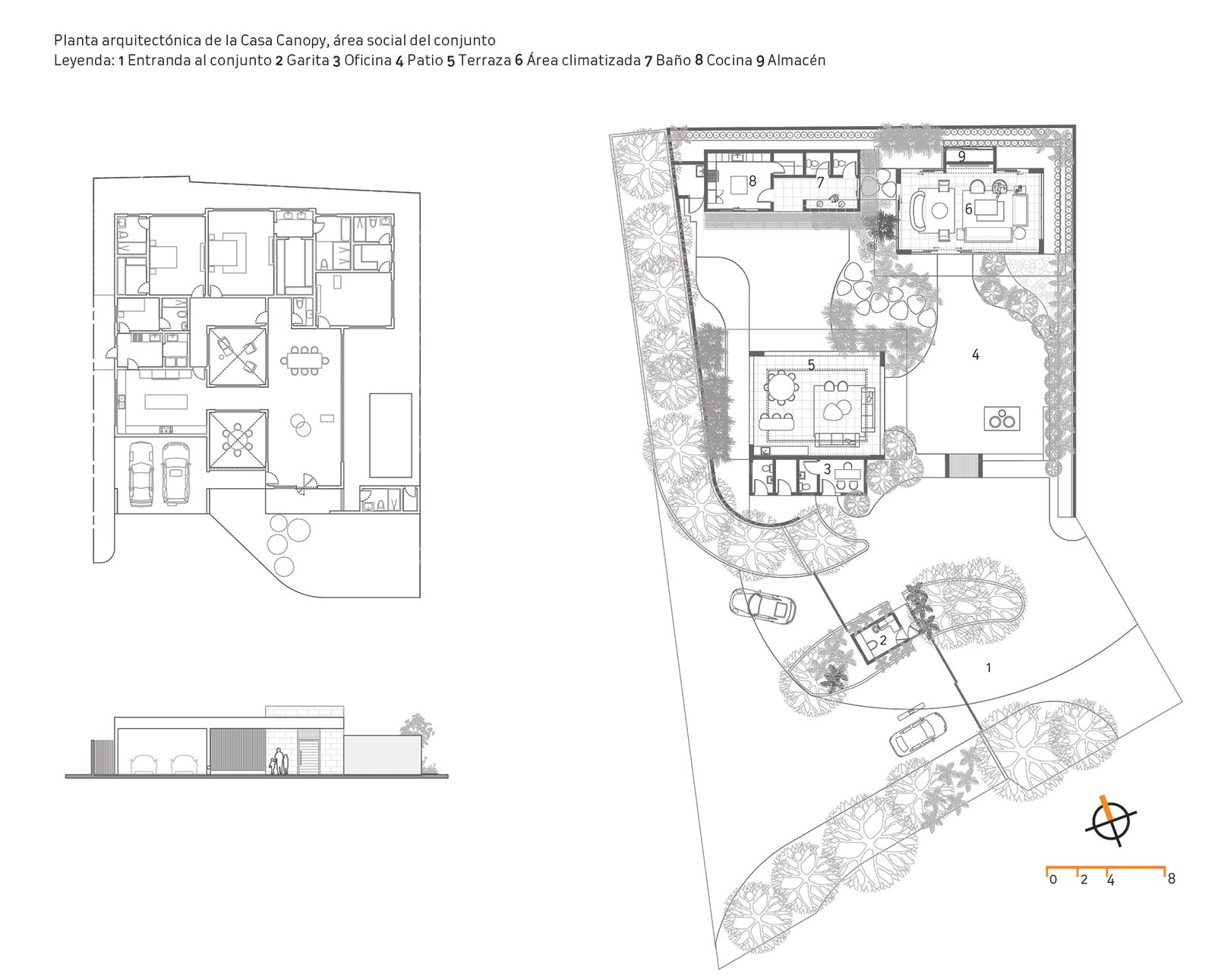
El conjunto integra dos equipamientos sociales que enriquecen la vida de los residentes. Casa Canopy, un área social conformada por tres volúmenes independientes que se integran de forma orgánica al paisaje, concebida a la vez como lugar de encuentro y refugio, cuenta con una terraza abierta, una cocina completamente equipada, baños independientes, un salón de estar con una atmósfera más íntima, área para fumadores de cigarros y espacios exteriores de BBQ, áreas de descanso y espejos de agua que refrescan el entorno. El segundo es Canopy Fitness, una verdadera zona de bienestar con gimnasio, campo de entrenamiento, terraza y parque infantil para adultos y niños. A estos espacios se suman una cancha de pickleball, un área infantil y un estacionamiento destinado a actividades extraordinarias.

El valor del proyecto se refuerza con la atención al detalle y la calidad de los acabados. La selección de materiales contribuye tanto a la estética como a la durabilidad. Se destacan los pavimentos de mármol y adoquines exteriores, que aportan nobleza y resistencia, así como los revestimientos cuidadosamente seleccionados de cocinas y baños, que elevan la experiencia cotidiana a un nivel de confort superior. A ello se suma el uso de maderas nobles en las puertas y muebles de cocina, que otorgan calidez, elegancia y un carácter atemporal a los interiores.

Canopy Living forma parte de una nueva generación de desarrollos inmobiliarios que apuestan por un conjunto habitacional sensible y responsable. El proyecto ofrece a 24 familias un espacio exclusivo y seguro, donde cada vivienda —única y personalizada— convive en armonía con un lenguaje arquitectónico común que garantiza cohesión visual y fortalece la identidad. En Canopy Living la arquitectura, la naturaleza y el bienestar se entrelazan para promover un estilo de vida comunitario, sereno y activo.
Plantas arquitectónicas de primer y segundo nivel, y elevaciones frontales de las casas tipo 6, 14, 20 y 19 (en orden de izquierda a derecha)
Planta arquitectónica de la Casa Canopy, área social del conjunto
CANOPY LIVING (2025)
Ubicación calle Penetración, sector Las Carmelitas, Santiago de los Caballeros. Propietario Ideare Group. Año inicio/término obra 2021-2025. Área total de construcción 24 unidades residenciales (437 y 590 m² en lotes de 600 a 1,000 m²). Área del lote 21,917 m². Diseño arquitectónico Arq. María Fernanda Rosario, Arq. María Victoria Bonilla, Arq. Nilsa Amelia Suárez. Colaboradores Arq. Aliusha Díaz, Arq. Virginia Peguero, Arq. Mayte Franco, Arq. Gissell Almonte, Ing. Fausto Castillo. Ingenieros residentes Ing. Natanel Gutiérrez, Ing. Magdelyn Rodríguez, Ing. Juan Esteban Salcedo, Ing. Joaquín García. Terminación Arq. Gissell Almonte, Arq. Priscilla El Hage, Arq. Mariely Marte, Arq. Raudy Henríquez, Arq. Paola Fadul. Consultores. Estructural Ing. Elías Ortiz, Ing. Pedro Raposo e Ing. Víctor Suárez. Eléctrico Ing. José Núñez. Sanitario Ing. Ramón Alexis Pichardo. Sistemas de a/a Cecomsa. Diseño de interiores Arq. María Victoria Bonilla. Decoración Charo Decoraciones. Diseño de iluminación Arq. María del Pilar Castillo. Diseño paisajístico Estudio PWP, Arq. Lowell Whipple y Arq. Ana Portela. Diseño gráfico Arq. María Fernanda Rosario. Contratista general Pantaleón Salcedo y Asoc.




